WATERBURY

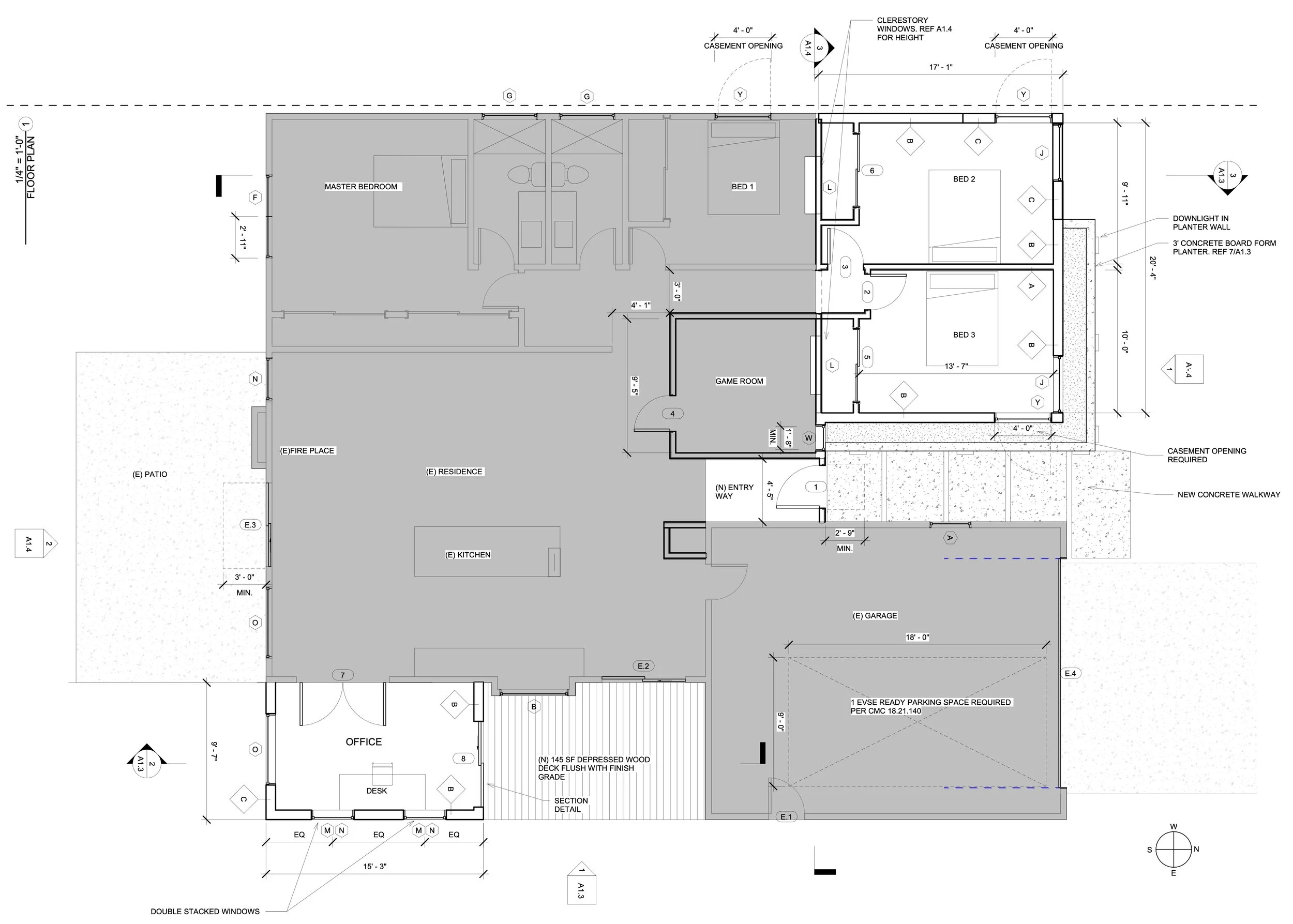
While this original 1980s tract home lacked room and functionality, it sits in an amazing Carlsbad neighborhood. A targeted addition offered an opportunity to transform the space into something more modern and refined. We expanded the front of the home by 200 square feet, creating increased bedroom space and a refreshed, welcoming entrance. Another 120 square feet off the kitchen provided room for a bright, useful office nook. Together, these upgrades elevate the home’s performance and overall character.

Location: Carlsbad

Type: Remodel + addition

Sq Ft: 450

Photography: Lauren Geis

Displays new front addition on this Carlsbad home. Smooth stucco and black sleek modern windows and Mexican feather grass in concrete planter
Image of modern, newly remodeled exterior front entry to house in Carlsbad, California designed by Geis Architecture. Wooden door, high end windows and exposed natural wood trellis
Image of new black modern window and light fixutre on exterior of renovated home by Geis Architecture
Shot of front of beautiful newly remodeled home in Carlsbad, California
Interior shot of hallway facing the front door. Modern globe light fixture and hardwood front door
Mexican feather grass in modern concrete planter with black landscape lighting
Exterior building materials on newly remodeled Carlsbad home. Smooth tan stucco and wood siding
Large concrete pavers with Mexican feather grass in planter above on this newly remodeled Carlsbad home
Angeled exterior shot of newly remodeled home in Carlsbad California designed by Geis Architecture. Modern, sleek, smooth stucco

Before:

Previous
Previous

IROQUOIS

Next
Next

KELP